Idle Road, Undercliffe, Bradford

Sold Subject to Contract £120,000

2 1 1


*BY AUCTION* *NO CHAIN* *HUGE POTENTIAL TO EXTEND* *TWO BEDROOMS* *IDEAL FOR INVESTORS* *POPULAR LOCATION* *GARDEN* *CLOSE TO LOCAL SCHOOLS & AMENITIES* For sale by the modern method of auction with Advanced Property Auction. Starting bid: £120,000. Nestled on Idle Road in the vibrant city of Bradford, this charming semi-detached house presents an excellent opportunity for both first-time buyers and those looking to invest. The property boasts two well-proportioned bedrooms, making it ideal for small families or professionals seeking a comfortable living space. Upon entering, you will find a welcoming reception room that is both spacious and well-presented, providing a perfect setting for relaxation or entertaining guests. The house is thoughtfully designed, ensuring that every corner is utilised effectively. The bathroom is conveniently located, catering to the needs of the household. One of the standout features of this property is the significant potential for extension at the side, allowing you to tailor the home to your specific needs and preferences. Whether you envision a larger living area, an additional bedroom, or a home office, the possibilities are endless. The exterior of the property is equally appealing, with well-maintained gardens that offer a delightful outdoor space for gardening enthusiasts or for enjoying sunny days with family and friends. Importantly, this property is offered with no chain, ensuring a smooth and efficient purchasing process. With its combination of charm, potential, and a prime location, this semi-detached house on Idle Road is a must-see for anyone looking to make a house their home in Bradford. Reservation fee of 3.5% + VAT (Subject to minimum of £5000 + VAT) applies.

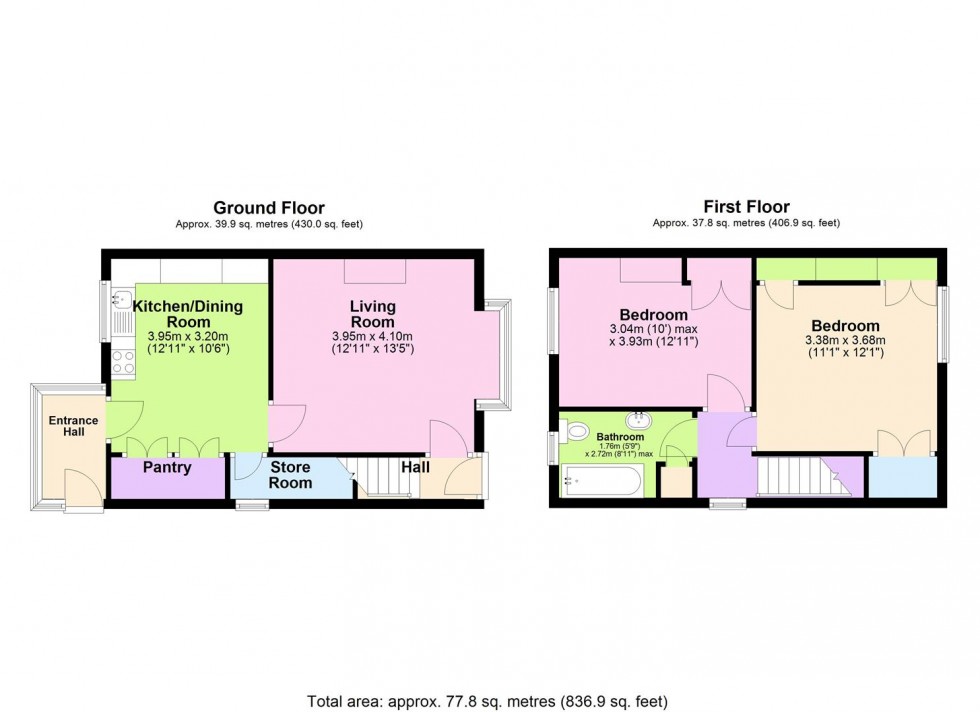
Floorplan for Idle Road, Undercliffe, Bradford
EPC Graph for Idle Road, Undercliffe, Bradford
Brochure for Idle Road, Undercliffe, Bradford
Similar Properties

Book a free valuation

Find out how much your property is worth